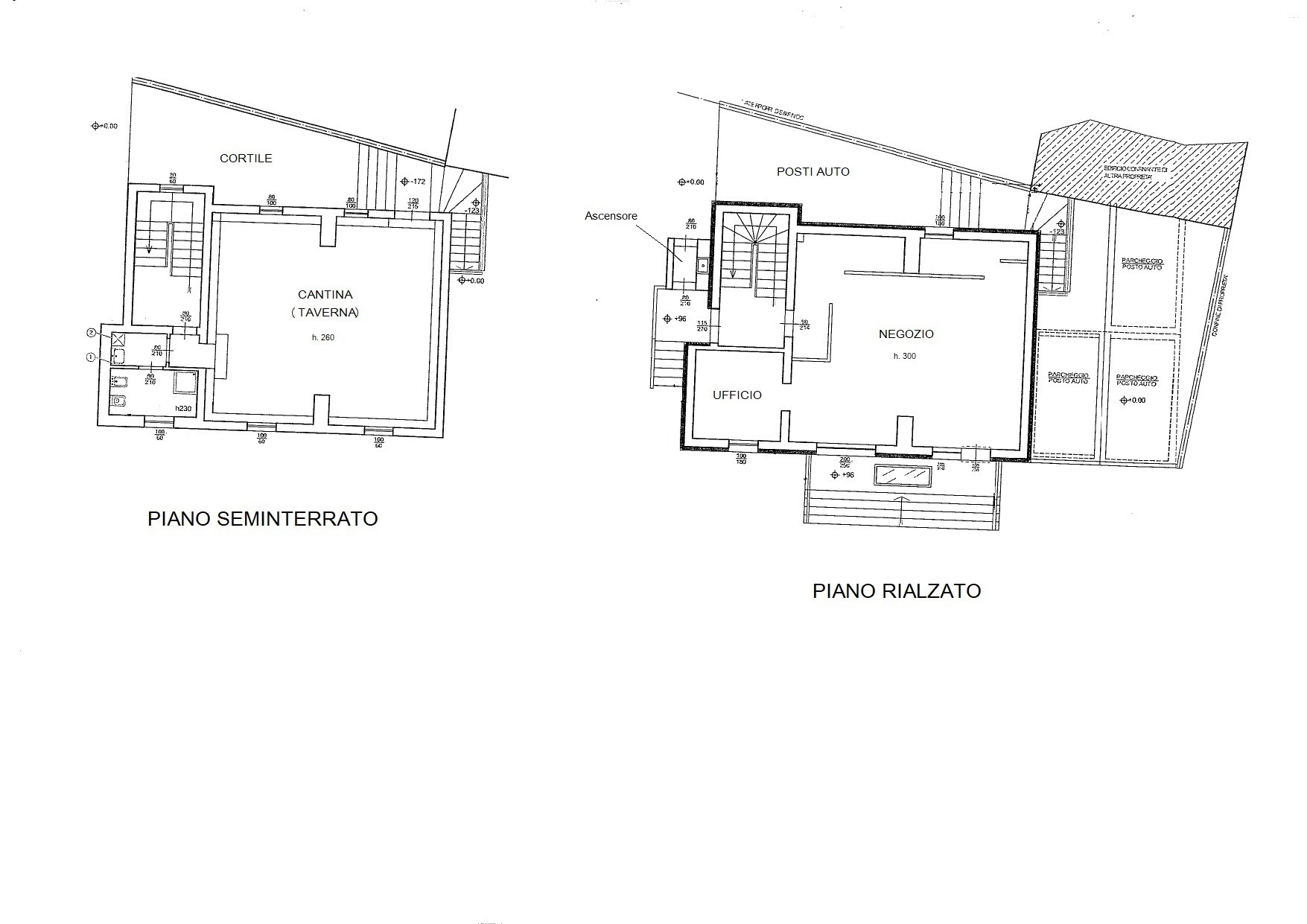
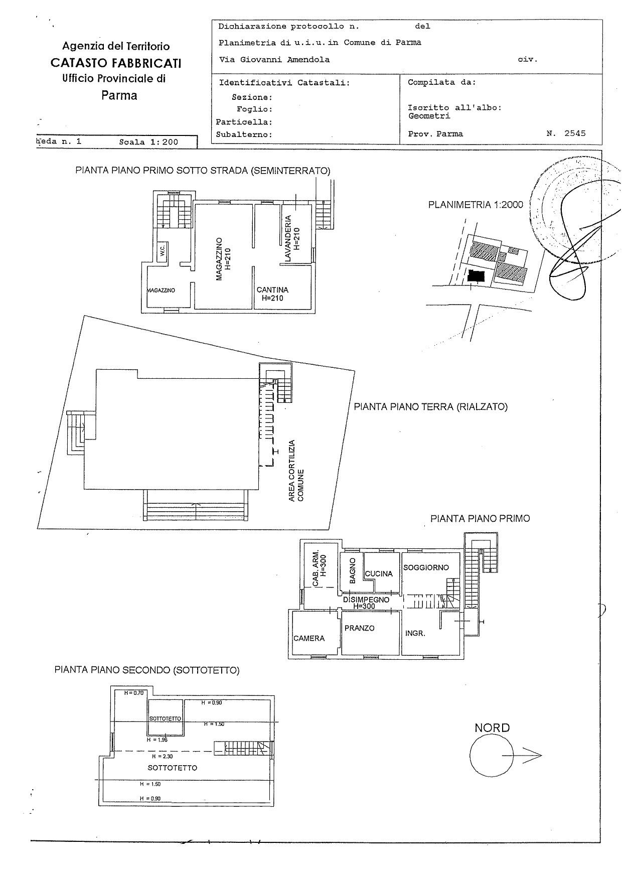
VIA SAN LEONARDO vendesi edificio indipendente a destinazione mista abitativa/commerciale, completamente ristrutturato, formato da appartamento, mansarda, negozio/ufficio con vetrine, taverna, complessivi 300 mq, ascensore, area cortilizia, 5/6 posti auto. Ideale per ambulatorio medico, abitazione con annesso studio/negozio indipendenti, B&B. Classe energetica "B". Prezzo €. 600.000. Rif. CIA241. Tel. 335.470005